Онлайн программа для создания линейной электросхемы. Как нарисовать схему онлайн
Занимаясь ремонтом дома столкнулся с необходимостью нарисовать однолинейную схему электроснабжения. Все можно было сделать от руки, но решил сделать на компьютере. Этот обзор посвящен бесплатным программам для подготовки однолинейных электрических схем.
Что такое однолинейная схема электроснабжения?
Однолинейная схема — это технический документ, который в ОБЩЕМ И ЦЕЛОМ дает человеку, с ним работающему, понятие о:Точках подключения объекта;
- Основных нагрузках и их показателях (мощность автоматов, их номинал, маркировка и т.д.);
- Питающем кабеле (вновь все его характеристики: тип, разрешенный ток и т.д.);
- Номинальном токе вводного устройства в точке подключения и защитно-коммутационных устройств (аналогично);
- Основных потребителях электричества на объекте (аналогично).
Фактически, без однолинейной схемы электроснабжения проводить электромонтажные работы НЕРЕАЛЬНО. Поскольку в документе есть главное – информация.
Что такое принципиальная электрическая схема
Принципиальная электрическая схема - это чертежи, показывающие полные электрические и магнитные и электромагнитные связи элементов объекта, а также параметры компонентов, составляющих объект, изображённый на чертеже.
Почему схема называется однолинейной?
Однолинейная схема – это та же электрическая принципиальная схема, но выполненная в упрощенном виде: все линии однофазных и трехфазных сетей изображаются одной линией.Пример однолинейной электрической схемы
В чем нарисовать однолинейную электрическую схему
Программ для черчения на компьютере (да, да электрические схемы не рисуют, а чертят!) много. Но все они как правило сложны в освоении, если Вы не занимаетесь этим профессионально. Однако я нашел несколько легких для использования обыкновенным человеком.
Программа 1-2-3 схема
Программное обеспечение компании HAGER 1-2-3-схема, Semiolog и hLsys Lume распространяются бесплатно. Скачивать можно и нужно с официального сайта http://www.hagersystems.ru/software/ . А не искать ее на файлопомойках и мусоросборках. Программа на русском языке.
Программа «1-2-3 схема» позволяет подобрать корпус электрощита в соответствии требованиями по степени защиты, укомплектовать его защитными и коммутационными модульными аппаратами, задать иерархию подключения модульных аппаратов и в автоматическом режиме сформировать однолинейную схему щита.
Программа позволяет корректно подобрать серию корпуса и его размер, исходя из количества модульных аппаратов, произвольным образом промаркировать модульные аппараты. Элементная база программы 1-2-3-схема содержит актуальные артикулы оборудования, поставляемые на российский рынок и сертифицированные по российским и европейским стандартам. С помощью 1-2-3-схемы можно грамотно составить спецификацию, создать однолинейную схему электрощита и отрисовать его внешний вид.
Понятное дело, что совсем не обязательно пользоваться элементной базой производителя HAGER. Главное — это результат, то есть однолинейная схема, корректный размер корпуса щитка (когда места хватает для всех автоматов) и бонусом печать этикеток которые потом можно наклеить на щиток над автоматами.Используя программу 1-2-3 схема вы сможете легко и с минимальными затратами времени создать электрическую схему щитка для жилищного строительства. Чтобы лучше использовать возможности программы и рационально использовать время hager разработал интерфейс между этой новой программой и программой для этикеток semiolog.Для работы Вы можете использовать только мышку, разработать и распечатать схему электрического щитка и этикетки с обозначениями элементов схемы для щитка.
Пример щита в сборе с маркировками групп потребителей, сделанных в программе Semiolog.
Программа XL Pro² от Legrand
Вторая программа также от производителя — это XL Pro² от Legrand, которая упрощает проектирование низковольтных комплектных устройств (НКУ).Программа позволяет конструкторам НКУ проектировать распределительные шкафы и щитки серии XL³ двумя методами:
- с помощью однолинейной схемы.
Программа автоматически определит тип комплектного устройства, рассчитает его стоимость, выполнит размещение оборудования. XL Pro² автоматически вносит все изменения, что максимально упрощает проектирование и расчет различных типов шкафов.Программа XL Pro распространяется бесплатно и доступна для загрузки зарегистрированными пользователями Extranet .
ПРОГРАММА XL PRO³
Программа XL Pro³ упрощает проектирование низковольтных комплектных устройств (НКУ).Программа позволяет конструкторам НКУ проектировать распределительные шкафы и щитки производства Legrand на токи до 6300 А двумя методами:
- подобрать оборудование Legrand из предложенного перечня, необходимое для сборки шкафа;
- с помощью однолинейной схемы.
Программа автоматически определит тип комплектного устройства, рассчитает его стоимость, выполнит размещение оборудования. XL Pro³ автоматически вносит все изменения, что максимально упрощает проектирование и расчет различных типов шкафов.Скачать программу можно на официальном сайте — http://www.legrand.ru/ru/scripts/ru/publigen/content/templates/previewMultiPhoto.asp?P=1715&L=EN
Rapsodie — Компоновка распределительных щитов
Это третья программа в обзоре для компоновки распределительных щитов, но теперь уже от schneider-electric.
- Rapsodie предназначена для компоновки шкафов НН серий Prisma Plus, Pragma и Kaedra.
- Работа в Rapsodie существенно ускоряет процесс компоновки шкафа.
- В результате работы с программой пользователь может получить: внешний вид шкафа и полную сборочную спецификацию, а также подробный расчет стоимости проекта.
- База данных программы содержит устройства Schneider Electric, пользователь может автоматически подобрать к ним дополнительные аксессуары. Также есть возможность создавать персональный каталог из устройств, которых нет в базе данных программы.
- Rapsodie также позволяет подобрать отобразить топологию однолинейной схемы для корректного подбора распределительных устройств и монтажных аксессуаров.
- В программе есть режим автоматического подбора ячейки нужной конфигурации с учетом ранее заданных критериев.
- Программа имеет привлекательный и интуитивно понятный русскоязычный интерфейс, документация выдается в виде файлов распространенных форматов (*.txt, *.xls, *.pdf, *.dxf).
ПреимуществаRapsodie — это интеллектуальный инструмент для компоновки НКУ.
- Комфорт и прозрачность при работе в программе
- Автоматическая проверка совместимости устройств
- Быстрый доступ к результатам проектирования
- Печать или экспорт полноценной сопроводительной документации
В результате работы с программой Пользователь может получить: внешний вид шкафа (двери, передние панели, устройства, монтажные платы, составные устройства) и полную сборочную спецификацию, подробный расчет стоимости проекта (в том числе с учетом сборочных и наладочных работ, а также с учетом скидок).Программа имеет привлекательный и интуитивно понятный русскоязычный интерфейс, документация создается в виде документов распространенных форматов (*.txt,*.xls, *.pdf, *.dxf). Работа в программе Rapsodie существенно ускоряет процесс компоновки шкафа и минимизирует возможность возникновения ошибки.Программа бесплатна, но так же как и в случае с Legrand она отсутствует в свободном доступе. Программа распространяется среди клиентов и партнеров ЗАО «Шнейдер Электрик» на безвозмездной основе. Для максимального удобства пользователей освоения Rapsodie проводится учебный курс в Центре Обучения Schneider Electric.Форму заявки на программу можно найти на сайте , в продуктовом разделе Rapsodie. Заполненную заявку следует отправлять в Центр поддержки клиентов по адресу [email protected]
Времена применения кульманов давно миновали, их заменили графические редакторы, это специальные программы для черчения электрических схем. Среди них есть как платные приложения, так и бесплатные (виды лицензий мы рассмотрим ниже). Уверены, что созданный нами краткий обзор поможет из разнообразия программных продуктов выбрать ПО, наиболее оптимальное для поставленной задачи. Начнем с бесплатных версий.
Бесплатные
Прежде, чем перейти к описанию программ кратко расскажем о бесплатных лицензиях, наиболее распространены из них следующие:
- Freeware – приложение не ограничено по функциональности и может использоваться в личных целях без коммерческой составляющей.
- Open Source – продукт с «открытым кодом», в который допускается вносить изменения подстраивая ПО под собственные задачи. Возможны ограничения на коммерческое использование и платное распространение внесенных модификаций.
- GNU GPL – лицензия практически не накладывающая на пользователя никаких ограничений.
- Public domain – практически идентична с предыдущим вариантом, на данный тип лицензии закон защиты авторских прав не распространяется.
- Ad-supported – приложение полностью функционально, содержит в себе рекламу других продуктов разработчика или других компаний.
- Donationware – продукт распространяется бесплатно, но разработчик предлагает внести пожертвования на добровольной основе для дальнейшего развития проекта.
Получив представление о бесплатных лицензиях можно переходить к ПО, распространяемому на таких условиях.
Microsoft Visio
Это простой в управлении, но в то же время весьма удобный редактор векторной графики, обладающий богатым функциональным набором. Несмотря на то, что основная социализация программы визуализация информации с приложений MS Office, ее вполне можно использовать для просмотра и распечатки радиосхем.
MS выпускает три платных версии, отличающихся функциональным набором и бесплатную (Viewer), которая интегрируется в браузер IE и позволяет с его помощью осуществлять просмотр файлов, созданных в редакторе. К сожалению, для редакции и создания новых схем потребуется приобрести полнофункциональный продукт. Заметим, что даже в платных версиях среди базовых шаблонов нет набора для полноценного создания радиосхем, но его несложно найти и установить.
Недостатки бесплатной версии:
- Недоступны функции редактирования и создания схем, что существенно снижает интерес к этому продукту.
- Программа работает только с браузером IE, что также создает массу неудобств.
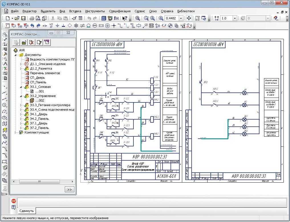
Компас-Электрик
Данная ПО является приложением к САПР российского разработчика «АСКОН». Для ее работы требуется установка среды КОМПАС-3D. Поскольку это отечественный продукт, в нем полностью реализована поддержка принятых России ГОСТов, и, соответственно, нет проблем с локализацией.
Приложение предназначено для проектирования любых видов электрооборудования и создания к ним комплектов конструкторской документации.
Это платное ПО, но разработчик дает 60 дней на ознакомление с системой, в течение этого времени ограничения по функциональности отсутствуют. На официальном сайте и в сети можно найти множество видео материалов, позволяющих детально ознакомиться с программным продуктом.
В отзывах многие пользователи отмечают, что в системе имеется масса недоработок, которые разработчик не спешит устранять.
Eagle
Данное ПО представляет собой комплексную среду, в которой можно создать как принципиальную схему, так и макет печатной платы к ней. То есть, расположить на плате все необходимые элементы и выполнить трассировку. При этом, она может быть выполнена как в автоматическом, так и ручном режиме или путем комбинации этих двух способов.
В базовом наборе элементов отсутствуют модели отечественных радиокомпонентов, но их шаблоны могут быть скачены в сети. Язык приложения – Английский, но локализаторы, позволяющие установить русский язык.
Приложение является платным, но возможность его бесплатного использования со следующими функциональными ограничениями:
- Размер монтажной платы не может превышать размера 10,0х8,0 см.
- При разводке можно манипулировать только двумя слоями.
- В редакторе допускается работа только с одним листом.
Dip Trace
Это не отдельное приложение, а целый программный комплекс, включающий в себя:
- Многофункциональный редактор для разработки принципиальных схем.
- Приложение для создания монтажных плат.
- 3D модуль, позволяющий проектировать корпуса для созданных в системе приборов.
- Программу для создания и редактирования компонентов.
В бесплатной версии программного комплекса, для некоммерческого использования, предусмотрены небольшие ограничения:
- Монтажная плата не более 4-х слоев.
- Не более одной тысячи выводов с компонентов.
В программе не предусмотрена русская локализация, но ее, а также описание всех функций программного продукта можно найти в сети. С базой компонентов также нет проблем, в изначально их около 100 тыс. На тематических форумах можно найти созданные пользователями базы компонентов, в том числе и под российские ГОСТы.
1-2-3 схема
Это полностью бесплатное приложение, позволяющее укомплектовать электрощиты Хагер (Hager) одноименным оборудованием.
Функциональные возможности программы:
- Выбор корпуса для электрощита, отвечающего нормам по степени защиты. Выборка производится из модельного ряда Hager.
- Комплектация защитным и коммутационным модульным оборудованием того же производителя. Заметим, что в элементной базе присутствуют только сертифицированные в России модели.
- Формирование конструкторской документации (однолинейной схемы, спецификации, отвечающей нормам ЕСКД, отрисовка внешнего вида).
- Создание маркеров для коммутирующих устройств электрощита.
Программа полностью локализована под русский язык, единственный ее недостаток, что в элементной базе присутствует только электрооборудование компании-разработчика.
Autocad Electrical
Приложение на базе известной САПР Autocad, созданное для проектирования электросхем и создания для них технической документации в соответствии с нормами ЕСКД.
Изначально база данных включает в себя свыше двух тысяч компонентов, при этом, их условно графические обозначения отвечают действующим российским и европейским стандартам.
Данное приложение платное, но имеется возможность в течение 30-ти дней ознакомиться с полным функционалом базовой рабочей версии.
Эльф
Данное ПО позиционируется в качестве автоматизированного рабочего места (АРМ) для проектировщиков-электриков. Приложение позволяет быстро и корректно разработать, практически, любой чертеж для электротехнических проектов с привязкой к плану помещений.
Функционал приложения включает в себя:
- Расстановку УГО при проектировании электросетей, проложенных открыто, в трубах или специальных конструкциях.
- Автоматический (с плана) или руной расчет силовой схемы.
- Составление спецификации в соответствии с действующими нормами.
- Возможность расширения базы элементов (УГО).
В бесплатной демонстрационной версии отсутствует возможность создания и редактирование проектов, их можно только просмотреть или распечатать.
Kicad
Это полностью бесплатный программный комплекс с открытым кодом (Open Source). Данное ПО позиционируется в качестве системы сквозного проектирования. То есть, можно разработать принципиальную схему, по ней создать монтажную плату и подготовить документацию, необходимую для производства.
Характерные особенности системы:
- Для разводки платы допускается применение внешних трассировщиков.
- В программу встроен калькулятор печатной платы, размещение на ней элементов можно выполнить автоматически или вручную.
- По завершению трассировки система генерирует несколько технологических файлов (например, для фотоплоттера, сверлильного станка и т.д.). При желании можно добавить логотип компании на печатную плату.
- Система может создать послойную распечатку в нескольких популярных форматах, а также сгенерировать список используемых в разработке компонентов для формирования заказа.
- Имеется возможность экспорт чертежей и других документов в форматы pdf и dxf.
Заметим, что многие пользователи отмечают непродуманность интерфейса системы, а также тот факт, что для освоения ПО требуется хорошо изучить документацию к программе.
TinyCAD
Еще одно бесплатное приложение с открытым кодом, позволяющее создавать чертежи принципиальных схем и имеющее функции простого редактора векторной графики. В базовом наборе содержится сорок различных библиотек компонентов.
TinyCAD – простой редактор для принципиальных схем
В программе не предусмотрена трассировка печатных плат, но имеется возможность экспортировать список соединений в стороннее приложение. Экспорт производится с поддержкой распространенных расширений.
Приложение поддерживает только английский язык, но благодаря интуитивному меню проблем с освоением не возникнет.
Fritzing
Бесплатная среда разработки проектов на базе Arduino. Имеется возможность создания печатных плат (разводку необходимо делать вручную, поскольку функция автотрассировки откровенно слабая).
Следует заметить, что приложение «заточено» для быстрого создания набросков, позволяющих объяснить принцип работы проектируемого прибора. Для серьезной работы у приложения слишком мала база элементов и сильно упрощенное составление схемы.
123D Circuits
Это веб-приложение для разработки Arduino-проектов, с возможностью программирования устройства, симуляции и анализа его работы. В типовом наборе элементов присутствуют только основные радио-компоненты и модули Arduino. При необходимости пользователь может создать новые компоненты и добавить их в базу. Примечательно, что разработанную печатную плату можно заказать, непосредственно, в онлайн-сервисе.
В бесплатной версии сервиса нельзя создавать свои проекты, но можно просматривать чужие разработки, находящиеся в открытом доступе. Для полноценного доступа ко всем возможностям необходимо оформить подписку ($12 или $24 в месяц).
Заметим, что из-за бедного функционала виртуальная среда разработки вызывает интерес только у начинающих. Многие из тех, кто пользовался сервисом, обратили внимание на тот факт, что результаты симуляции расходятся с реальными показателями.
XCircuit
Бесплатное мультиплатформенное приложение (лицензия GNU GPL) для быстрого создания принципиальных схем. Функциональный набор минимальный.
Язык приложения – английский, программа не воспринимает русские символы. Также следует обратить внимание на нетипичное меню, к которому необходимо привыкнуть. Помимо этого контекстные подсказки выводятся на панель состояния. В базовый набор элементов входят УГО только основных радиодеталей (пользователь может создать свои элементы и добавить их).
CADSTAR Express
Это демонстрационная версия одноименной САПР. Функциональные ограничения коснулись лишь числа элементов, используемых в схеме разработки (до 50 шт) и количеств контактов (не более 300), что вполне достаточно для небольших радиолюбительских проектов.
Программа состоит из центрального модуля, в которых входит несколько приложений позволяющих разработать схему, создать для нее плату и подготовить пакет технической документации.
В базовый набор входит более 20 тыс. компонентов, дополнительно можно загрузить с сайта разработчика дополнительные библиотеки.
Существенным недостатком системы является отсутствие поддержки русского языка, соответственно, все техническая документация также представлена в сети на английском.
QElectroTech
Простое удобное и бесплатное (FreeWare) приложения для разработки электрических и электронных схем-чертежей. Программа является обычным редактором, никаких специальных функций в ней не реализовано.
Язык приложения – английский, но для него имеется русская локализация.
Платные приложения
В отличие от ПО, распространяемого по бесплатным лицензиям, коммерческие программы, как правило, обладают значительно большим функционалом, и поддерживаются разработчиками. В качестве примера мы приведем несколько таких приложений.
sPlan
Простая программа-редактор для черчения электросхем. Приложение комплектуется несколькими библиотеками компонентов, которые пользователь может расширять по мере необходимости. Допускается одновременная работа с несколькими проектами, путем их открытия в отдельных вкладках.
Чертежи, сделанные программой, хранятся в виде файлов векторной графики собственного формата с расширением «spl». Допускается конвертация в типовые растровые форматы изображения. Имеется возможность печати больших схем на обычном принтере А4-го формата.
Официально приложение не выпускается в русской локализации, но существуют программы, позволяющие русифицировать меню и контекстные подсказки.
Помимо платной версии предусмотрены две бесплатных реализации Demo и Viewer. В первой нет возможности сохранить и распечатать нарисованную схему. Во второй предусмотрена только функция просмотра и печати файлов формата «spl».
Eplan Electric
Многомодульная масштабируемая САПР для разработки электротехнических проектов различной сложности и автоматизации процесса подготовки конструкторской документации. Данный программный комплекс сейчас позиционируется в качестве корпоративного решения, поэтому для рядовых пользователей он будет не интересен, особенно если принять в учет стоимость ПО.
Target 3001
Мощный САПР комплекс, позволяющий разрабатывать электросхемы, трассировать печатные платы, моделировать работу электронных устройств. Онлайн библиотека компонентов насчитывает более 36 тыс. различных элементов. Данная CAD широко применяется в Европе для трассировки печатных плат.
По умолчанию устанавливается английский язык, имеется возможность установить меню на немецком или французском, официально русской локализации нет. Соответственно, вся документация представлена только на английском, французском или немецком языке.
Стоимость самой простой базовой версии около 70 евро. За эти деньги будет доступна трассировка двух слоев на 400 выводов. Стоимость нелимитированной версии в районе 3,6 тыс. евро.
Micro-Cap
Приложение для моделирования цифровых, аналоговых и смешанных схем, а также анализа их работы. Пользователь может создать в редакторе электрическую цепь и задать параметры для анализа. После это по одному клику мышки система автоматически чего произведет необходимые расчеты и выдаст результаты для изучения.
Программа позволяет установить зависимость параметров (номиналов) элементов от температурного режима, освещенности, частотных характеристик и т.д. Если в схеме присутствуют анимированные элементы, например, светодиодные индикаторы, то их состояние будут корректно отображаться, в зависимости от поступающих сигналов. Имеется возможность при моделировании «подключать» к схеме виртуальные измерительные приборы, а также отслеживать состояние различных узлов устройства.
Стоимость полнофункциональной версии около $4,5 тыс. Официальной русской локализации приложения не существует.
TurboCAD
Данная САПР платформа включает в себя множество инструментов, для проектирования различных электрических устройств. Набор специальных функций позволяет решать инженерно-конструкторские задачи любого уровня сложности.
Отличительные особенности – тонкая настройка интерфейса под пользователя. Множество справочной литературы, в том числе и на русском языке. Несмотря на отсутствие официальной поддержки русского языка, для платформы имеются русификаторы.
Для рядовых пользователей приобретение платной версии программы с целью разработки электросхем для любительских устройств, будет нерентабельно.
Designer Schematic
Приложение для создания электросхем с использованием радиоэлементов производства Digi-Key. Основная особенность данной системы заключается в том, что в редакторе для построения схем, может использовать механическое проектирование.
Базы данных компонентов можно в любой момент проверить на соответствие и при необходимости произвести обновление прямо с сайта производителя.
Система не имеет собственного трассировщика, но список соединений может быть загружен в стороннюю программу.
Имеется возможность импорта файлов из популярных САПР.
Ориентировочная стоимость приложения около $300.
Электрику в процессе своей профессиональной деятельности очень часто приходится выполнять множество сложных расчетов различных параметров электрических систем, изображать электрические схемы, выбирать различное оборудование. Данная работа отнимает много времени. Существует множество полезных программ для электриков, которые предназначены для расчета различных параметров, черчения схем и т.д.
Основная цель данных программ - значительно упростить работу электрику, сведя к минимуму время, потраченное на выполнение расчетов или черчение схем, с чем часто сталкивается инженер-электрик. В данной статье рассмотрим наиболее распространенные программы для электриков.
Программа "Электрик"
Начнем обзор программ с многофункциональной программы «Электрик». Возможности данной программы очень широкие. Итак, в данной программе можно:
Произвести расчет мощности электроприбора по известному значению одно- или трехфазного тока, а также наоборот, то есть, зная электрическую мощность, можно определить потребляемый ток, как однофазного потребителя, так и трехфазного потребителя электрической энергии;
Определить номинальный ток и мощность по заданному сечению проводника с учетом способа прокладки, а также других условий;
Вычислить значение потерь напряжения в сети;
По заданным параметрам определить требуемое сечение провода, кабеля (специального кабеля);
Произвести проверку выбранного кабеля (провода) по нескольким критериям;
Программа «Электрик» имеет интуитивно понятный и удобный интерфейс.
В данной программе есть множество полезных функций, которые пригодятся не только инженеру, но и домашнему мастеру. Например, в данной программе можно рассчитать требуемое количество провода для прокладки электропроводки в квартире.
Кроме большого функционала данной программы следует отметить еще одно преимущество - она абсолютно бесплатна.
О том, как работать в программе "Электрик" смотрите здесь:
Программа "Мобильный электрик"
В наше время доступ к компьютеру есть не всегда, а вот мобильный телефон всегда при себе. Предлагаем вашему вниманию еще одну программу для электрика «Мобильный электрик». В данной программе есть множество полезных функций, которые будут незаменимы как для профессионального электрика, так и для рядового домашнего мастера.
С помощью «Мобильного электрика» вы сможете произвести расчет необходимого сечения провода или кабеля, выбрать необходимый аппарат защиты, вычислить номинальный ток того или иного провода (кабеля) и многое другое. Огромное преимущество в том, что эта программа будет всегда под рукой, и в нужный момент вы сможете с легкостью произвести расчет требуемого параметра.
Рассмотрим следующую программу - «Компас-Электрик». Данная программа предназначена для проектировки оборудования и дальнейшей разработки документации в электротехнической промышленности. Данная программа значительно упрощает процесс создания документации при проектировке различного оборудования, так как большинство элементов формируется автоматически.
Программа состоит из двух частей (модулей): редактора схем и базы данных. Редактор схем позволяет создать несколько видов схем, начиная от принципиальной электрической схемы и заканчивая схемой расположения элементов. В данном модуле есть также возможность создания спецификаций, различных таблиц для наглядного изображения способов подключения тех или иных элементов схем, перечней используемых в схемах элементов.
В базе данных расположены все комплектующие изделия, которые используются в проекте. По умолчанию в данном модуле программы содержится до 6000 различных типов изделий и несколько сотен графических условных обозначений, которые используются при проектировании различного оборудования (низковольтных установок, автоматизированных систем диспетчерского управления, различных устройств автоматики и релейной защиты). Кроме того, у пользователя есть возможность импортировать свою базу данных условных обозначений, готовых изделий, их характеристик и много другое.
Еще одна похожая по масштабности и возможностям на «Компас-Электрик» программа - .

Схема - это основной документ электрика, которым он руководствуется при выполнении различных работ, как монтажных, так и ремонтных. В настоящее время существует множество программ, при помощи которых можно чертить схемы. Рассмотрим популярную программу для создания электрических схем «sPlan».
Данная программа распространяется на платной основе, но она стоит своих денег. В данной программе очень удобно создавать схему любой сложности. Программа имеет очень удобный интерфейс, поэтому на освоение в ней не нужно большого количества времени. Данный продукт широко используется, как студентами, так и профессиональными электриками.

В данной программе установлено огромное количество элементов электротехнической продукции. Поэтому она подходит для изображения схем разного назначения и типа. В «sPlan» каждый найдет для себя необходимые элементы для изображения той или иной схемы. Студент без труда изобразит электросхему токарного станка, инженер - однолинейную схему электрической сети, а профессиональный электрик - схему электрической проводки квартиры.
В данной программе есть возможность указания номинальных данных и других пометок к каждому элементу электрической схемы. Процесс создания схемы в «sPlan» происходит быстро и без особых усилий: достаточно выбрать необходимый элемент и просто перетащить его в область схемы.
Кроме вышеперечисленных достоинств данной программы следует отметить еще одно - возможность печати больших форматов на обычном принтере. То есть вы сможете разбить чертеж в формате А1 на несколько листов формата А4 и в дальнейшем их склеить. Это очень удобно в том случае, когда нет возможности распечатать большой формат.
Пример создания схемы в программе sPlan:
Программа "Начала Электроники"
Рассмотрим еще одну программу - «Начала Электроники», которая придет по душе начинающим электрикам. Данная программа являет собой электронный конструктор, в котором имитируются процессы, которые имеют место в электротехнике. То есть вы можете создать электрическую схему различной сложности, произвести измерения электрических величин. В общем, все то, что выполняется в реальном физическом эксперименте. Только в данном случае у вас есть преимущество: все выполняемые эксперименты в программе виртуальны, поэтому не несут потенциальной опасности, как, например, проведение реального опыта в лаборатории.
Программа «Начала Электроники» поможет изучить различные законы электротехники, принципы применения защитных аппаратов, а также приобрести практические навыки определения различных величин и исследования различных явлений.
Рисование электрических схем и чертежей становится более легким процессом, если это осуществлять при помощи специального софта. Программы предоставляют огромное количество инструментов и функций, которые идеально подходят для выполнения данной задачи. В этой статье мы подобрали небольшой список представителей подобного ПО. Давайте ознакомимся с ними.
Первой рассмотрим программу Visio от известной многим компании Microsoft. Ее основная задача – рисование векторной графики, и благодаря этому нет каких-то профессиональных ограничений. Электрики свободно смогут создавать здесь схемы и чертежи с помощью встроенных инструментов.

Присутствует большое количество различных фигур и объектов. Их связка осуществляется всего одним кликом. Microsoft Visio также предоставляет множество настроек вида схемы, страницы, поддерживает вставку изображений диаграмм и дополнительных чертежей. Пробная версия программы доступна к скачиванию бесплатно на официальном сайте. Рекомендуем ознакомиться с ней перед покупкой полной.
Eagle
Теперь рассмотрим специализированный софт для электриков. Eagle обладает встроенными библиотеками, где присутствует большое количество различных заготовок типов схем. Новый проект также начинается с создания каталога, там будут сортироваться и храниться все использованные объекты и документы.

Редактор реализован достаточно удобно. Присутствует основной набор инструментов, помогающих вручную быстро нарисовать правильный чертеж. Во втором редакторе создаются печатные платы. Отличается он от первого наличием дополнительных функций, которые было бы неправильно помещать в редактор принципиальной схемы. Русский язык присутствует, однако переведена не вся информация, что может стать проблемой для определенных пользователей.
Dip Trace
Dip Trace представляет собой набор нескольких редакторов и меню, в которых выполняются различные процессы с электрическими схемами. Переход в один из доступных режимов работы осуществляется через встроенный лаунчер.

В режиме работы со схемотехникой происходят основные действия с печатной платной. Здесь добавляются и редактируются компоненты. Детали выбираются из определенного меню, где по умолчанию установлено большое количество объектов, но пользователь может создать элемент вручную с помощью другого режима работы.
1-2-3 Схема
«1-2-3 Схема» была разработана специально для того, чтобы подобрать подходящий корпус электрощита в соответствии с установленными компонентами и надежностью защиты. Создание новой схемы происходит через мастера, пользователю потребуется только выбирать необходимые параметры и вписывать определенные значения.

Присутствует графическое отображение схемы, ее можно отправить в печать, но нельзя редактировать. По завершении создания проекта выбирается крышка щита. На данный момент «1-2-3 Схема» не поддерживается разработчиком, обновления выходили давно и скорее всего их больше не будет вообще.
sPlan
sPlan – один из самых простых инструментов в нашем списке. Он предоставляет только самые необходимые инструменты и функции, максимально упрощая процесс создания схемы. Пользователю потребуется только добавить компоненты, связать их и отправить плату в печать, предварительно настроив ее.

Кроме всего присутствует небольшой редактор компонентов, полезный тем, кто хочет добавить собственный элемент. Здесь доступно создание надписей и редактирование точек. Во время сохранения объекта нужно обратить внимание, чтобы он не заменил оригинал в библиотеке, если это не нужно.
Компас-3D
«Компас-3D» – профессиональное программное обеспечение для построения различных схем и чертежей. Данный софт поддерживает не только работу в плоскости, но и позволяет создавать полноценные 3D-модели. Пользователь может сохранять файлы во множестве форматов и в дальнейшем использовать их в других программах.

Интерфейс реализован удобно и полностью русифицирован, даже новички должны быстро освоиться в нем. Присутствует большое количество инструментов, обеспечивающих быстрое и правильное черчение схемы. Пробную версию «Компас-3D» вы можете загрузить на официальном сайте разработчиков совершенно бесплатно.
Электрик
Заканчивает наш список «Электрик» – полезный инструмент для тех, кто часто выполняет различные электрические расчеты. Программа оснащена более чем двадцатью различными формулами и алгоритмами, с помощью чего осуществляются вычисления за максимально короткий срок. От пользователя требуется только заполнить определенные строки и отметить галочками необходимые параметры.

Мы подобрали для вас несколько программ, позволяющих работать с электрическими схемами. Все они чем-то похожи, но и имеют свои уникальные функции, благодаря которым и становятся популярными у широкого круга пользователей.
Мы все больше пользуемся компьютером и виртуальными инструментами. Вот уже и чертить на бумаге схемы не всегда хочется — долго, не всегда красиво и исправлять сложно. Кроме того, программа для рисования схем может выдать перечень необходимых элементов, смоделировать печатную плату, а некоторые могут даже просчитать результаты ее работы.
Бесплатные программы для создания схем
В сети имеется немало неплохих бесплатных программ для рисования электрических схем. Профессионалам их функционала может быть недостаточно, но для создания схемы электроснабжения дома или квартиры, их функций и операций хватит с головой. Не все они в равной мере удобны, есть сложные в освоении, но можно найти несколько бесплатных программ для рисования электросхем которыми сможет пользоваться любой, настолько в них простой и понятный интерфейс.
Самый простой вариант — использовать штатную программу Windows Paint, которая есть практически на любом компьютере. Но в этом случае вам придется все элементы прорисовывать самостоятельно. Специальная программа для рисования схем позволяет вставлять готовые элементы на нужные места, а потом соединять их при помощи линий связи. ОБ этих программах и поговорим дальше.
Бесплатная программа для рисования схем — не значит плохая. На данном фото работа с Fritzing
Программа для рисования схем QElectroTech есть на русском языке, причем русифицирована она полностью — меню, пояснения — на русском языке. Удобный и понятный интерфейс — иерархическое меню с возможными элементами и операциями в левой части экрана и несколько вкладок вверху. Есть также кнопки быстрого доступа для выполнения стандартных операций — сохранения, вывода на печать и т.п.

Имеется обширный перечень готовых элементов, есть возможность рисовать геометрические фигуры, вставлять текст, вносить изменения на определенном участке, изменять в каком-то отдельно взятом фрагменте направление, добавлять строки и столбцы. В общем, довольно удобна программа при помощи которой легко нарисовать схему электроснабжения, проставить наименование элементов и номиналы. Результат можно сохранить в нескольких форматах: JPG, PNG, BMP, SVG, импортировать данные (открыть в данной программе) можно в форматах QET и XML, экспортировать — в формате QET.
Недостаток этой программы для рисования схем — отсутствие видео на русском языке о том, как ей пользоваться, зато есть немалое количество уроков на других языках.
Графический редактор от Майкрософт — Visio
Для тех, кто имеет хоть небольшой опыт работы с продуктами Майкрософт, освоить работу в из графическом редакторе Visio (Визио) будет несложно. У данного продукта также есть полностью русифицированная версия, причем с хорошим уровнем перевода.

Данный продукт позволяет начертить схему в масштабе, что удобно для расчета количества необходимых проводов. Большая библиотека трафаретов с условными обозначениями, различных составляющих схемы, делает работу похожей на сборку конструктора: необходимо найти нужный элемент и поставить его на место. Так как к работе в программах данного типа многие привыкли, сложности поиск не представляет.
К положительным моментам можно отнести наличие приличного количества уроков по работе с этой программой для рисования схем, причем на русском языке.
Компас Электрик
Еще одна программа для рисования схем на компьютере — Компас Электрик. Это уже более серьезный продукт, который используют профессионалы. Имеется широкий функционал, позволяющий рисовать различные планы, блок-схемы, другие подобные рисунки. При переносе схемы в программу параллельно формируется спецификация и монтажная схема и све они выдаются на печать.
Для начала работы необходимо подгрузить библиотеку с элементами системы. При выборе схематичного изображения того или иного элемента будет «выскакивать» окно, в котором будет список подходящих деталей, взятый из библиотеки. Из данного списка выбирают подходящий элемент, после чего его схематичное изображение появляется в указанном месте схемы. В то же время автоматически проставляется соответствующее ГОСТу обозначение со сквозной нумерацией (цифры программа меняет сама). В то же время в спецификации появляются параметры (название, номер, номинал) выбранного элемента.

В общем, программа интересная и полезная для разработки схем устройств. Может применяться для создания схемы электропроводки в доме или квартире, но в этом случае ее функционал использован почти не будет. И еще один положительный момент: есть много видео-уроков работы с Компас-Электрик, так что освоить ее будет несложно.
Программа DipTrace — для рисования однолинейных схем и принципиальных
Эта программа полезна не только для рисования схем электроснабжения — тут все просто, так как нужна только схема. Более полезна она для разработки плат, так как имеет встроенную функцию преобразования имеющейся схемы в трассу для печатной платы.
Для начала работы, как и в многих других случаях, необходимо сначала подгрузить имеющиеся на вашем компьютере библиотеки с элементной базой. Для этого необходимо запустить приложение Schematic DT, после чего можно загрузить библиотеки. Их можно будет скачать на том же ресурсе, где будете брать программу.
После загрузки библиотеки можно приступать к рисованию схемы. Сначала можно «перетащить» нужные элементы из библиотек на рабочее поле, развернуть их (если понадобится), расставить и связать линиями связи. После того как схема готова, если необходимо, в меню выбираем строку «преобразовать в плату» и ждем некоторое время. На выходе будет готовая печатная плата с расположением элементов и дорожек. Также можно в 3D варианте посмотреть внешний вид готовой платы.
Бесплатная прога ProfiCAD для составления электросхем
Бесплатная программа для рисования схем ProfiCAD — один из лучших вариантов для домашнего мастера. Она проста в работе, не требует наличия на компьютере специальных библиотек — в ней уже есть коло 700 элементов. Если их недостаточно, можно легко пополнить базу. Требуемый элемент можно просто «перетащить» на поле, там развернуть в нужном направлении, установить.

Отрисовав схему, можно получить таблицу соединений, ведомость материалов, список проводов. Результаты можно получить в одном из четырех наиболее распространенных форматов: PNG, EMF, BMP, DXF. Приятная особенность этой программы — она имеет низкие аппаратные требования. Она нормально работает с системами от Windows 2000 и выше.
Есть у этого продукта только один недостаток — пока нет видео о работе с ней на русском языке. Но интерфейс настолько понятный, что разобраться можно и самому, или посмотреть один из «импортных» роликов чтобы понять механику работы.
Если вам придется часто работать с программой для рисования схем, стоит рассмотреть некоторые платные версии. Чем они лучше? У них более широкий функционал, иногда более обширные библиотеки и более продуманный интерфейс.
Простая и удобная sPlan
Если вам не очень хочется разбираться с тонкостями работы с многоуровневыми программм, присмотритесь к пролукту sPlan. Он имеет очень простое и понятное устройство, так что через час-полтора работы вы будете уже свободно ориентироваться.
Как обычно в таких программах, необходима библиотека элементов, после первого пуска их надо подгрузить перед началом работы. В дальнейшем, если не будете переносить библиотеку в другое место, настройка не нужна — старый путь к ней используется по умолчанию.

Если вам необходим элемент, которого нет в списке, его можно нарисовать, затем добавить в библиотеку. Также есть возможность вставлять посторонние изображения и сохранять их, при необходимости, в библиотеке.
Из других полезных и нужных функций — автонумерация, возможность изменения масштаба элемента при помощи вращения колесика мышки, линейки для более понятного масштабирования. В общем, приятная и полезная вещь.
Micro-Cap
Эта программа кроме построения схемы любого типа (аналогового, цифрового или смешанного) позволяет еще и проанализировать ее работу. Задаются исходные параметры и получаете выходные данные. То есть, можно моделировать работу схемы при различных условиях. Очень полезная возможность, потому, наверное, ее очень любят преподаватели, да и студенты.
В программе Micro-Cap есть встроенные библиотеки, которые можно пополнять при помощи специальной функции. При рисовании электрической схемы продукт в автоматическом режиме разрабатывает уравнения цепи, также проводит расчет в зависимости от проставленных номиналов. При изменении номинала, изменение выходных параметров происходит тут же.

Программа для черчения схем электроснабжения и не только — больше для симуляции их работы
Номиналы элементов могут быть постоянными или переменными, зависящими от различных факторов — температуры, времени, частоты, состояния некоторых элементов схемы и т.д. Все эти варианты просчитываются, результаты выдаются в удобном виде. Если есть в схеме детали, которые изменяют вид или состояние — светодиоды, реле — при симуляции работы, изменяют свои параметры и внешний вид благодаря анимации.
Программа для черчения и анализа схем Micro-Cap платная, в оригинале — англоязычная, но есть и русифицированная версия. Стоимость ее в профессиональном варианте — больше тысячи долларов. Хороша новость в том, что есть и бесплатная версия, как водится с урезанными возможностями (меньшая библиотека, не более 50 элементов в схеме, сниженная скорость работы). Для домашнего пользования вполне подойдет и такой вариант. Приятно еще что она нормально работает с любой системой Windows от Vista и 7 и выше.